Springfield Barn

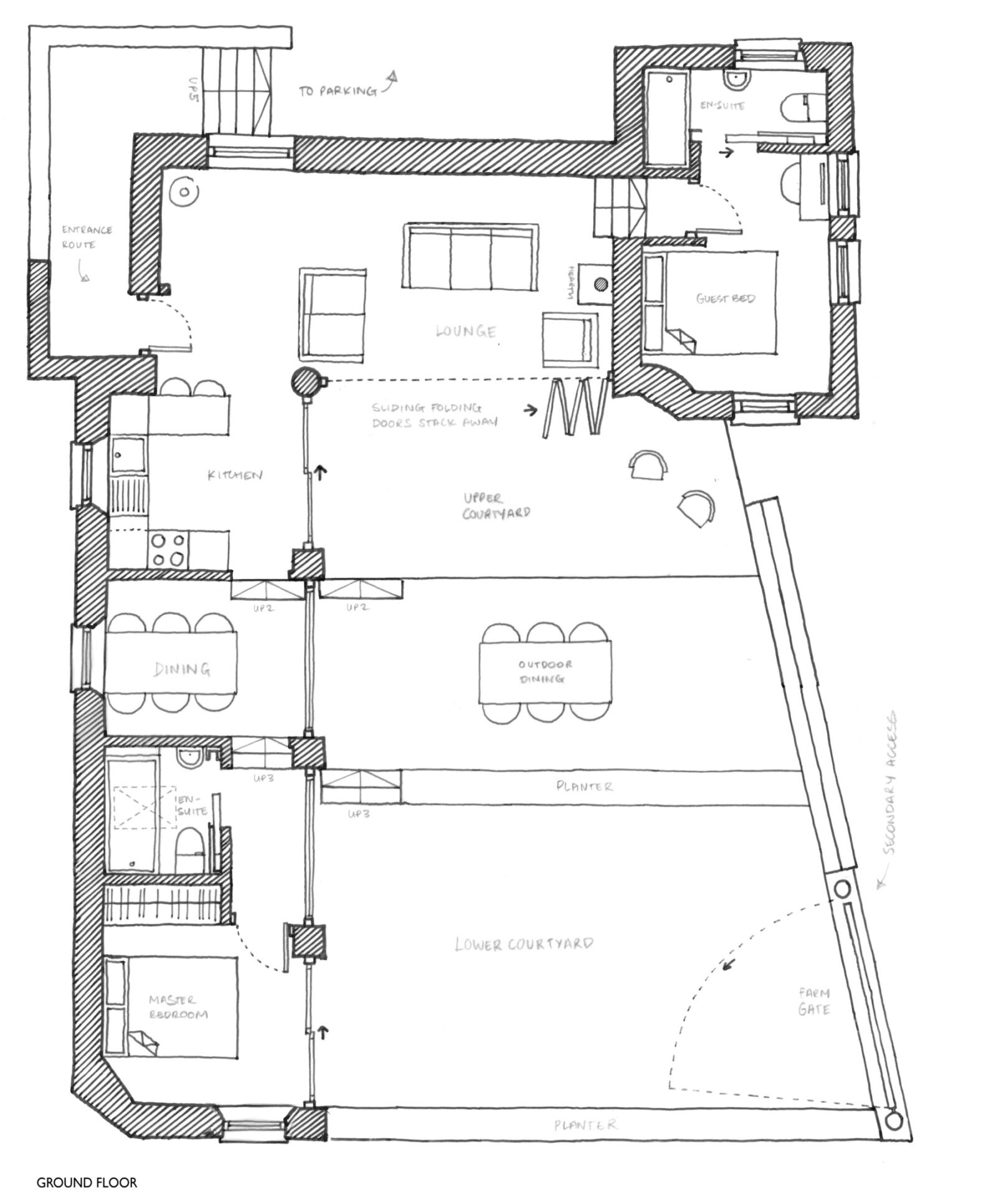
This project involved a Class Q conversion of a small building set within a site of glorious rural views. The shallow depth of the plans meant that each volume could only be one room deep, and the design had to avoid unnecessary circulation space. Four changes in level were also accommodated within the scheme, adding complexity to the layout.

 

The resulting design enters at the outside corner of the principal L-shaped living space, with the lounge facing south and the kitchen oriented east-west. Two bedrooms are positioned at opposite ends of the central living area, each with an adjoining bathroom for privacy and convenience.

A distinctive feature of the design is the open-fronted Linhay, which allows extensive glazing on one side of the building and brings light deep into the home. All rooms open onto a sheltered, sunny courtyard, which functions as an external room and extends the living space into the landscape.

The result is a thoughtfully planned, light-filled home that maximises its rural setting while responding cleverly to the constraints of the original building.

LOCATION: Devon

GIA: 65sqm

STATUS: Completed

STAGE OF INVOLVEMENT: Full Planning & Technical Design